Zumtobel Group award nominees in focus: Megacity Skeleton
Improving life in high-density dwellings
This year's shortlisted candidates have been announced for the Urban Developments & Initiatives category of the Zumtobel Group Awards, sponsored by Thorn Lighting. One of the projects to make the cut is Megacity Skeleton, a prototype housing project based in the Kampung Cikini district of Jakarta, which aims to improve living standards in high-density residential areas.
The project is a collaboration between UNITYDESIGN, Chiba University, Research Institute for Humanity and Nature and Universitas Indonesia. It aims to give residents in poor, high-density urban areas higher quality housing without government intervention, reducing the risk that whole areas will be forcibly demolished to make way for higher-value housing.
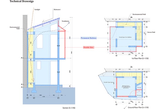
One way the project helps is by increasing the natural light in high-density dwellings. By creating a void behind each residence, the plan allows more sunlight to enter homes, with no need to widen roads or destroy building in the process.
The Megacity Skeleton project has created prototype residences that incorporate two main elements: a 'Permanent Skeleton' and a 'Flexible Skin'. The Permanent Skeleton is extremely robust, providing a light, well-ventilated living environment. Meanwhile, the Flexible Skin, which covers the permanent structure, can be renewed by users in the future as needed – ensuring that dwellings can be used for many years to come.
Megacity Skeleton is helping to give residents of high-density inner-city areas pride in their homes and surroundings. Through constant contact with local communities, including meetings and workshops, the project is helping to educate people on how to improve their built environment, while promoting a positive vision for the future.
The winning project will be announced at the Zumtobel Group Award press conference in London on September 22nd. For more information, visit www.zumtobel-group-award.com/en/957.asp
Copyright:
UNITYDESIGN / Chiba University / Research Institute for Humanity and Nature (JP) / Universitas Indonesia (RI) and NUWALARUPA, photographer.





